Your search results

Industrie- und Gewerbeflächen Falkenberg-Lönnewitz

Grassauer Straße,
zu Favoriten hinzufügen
1091
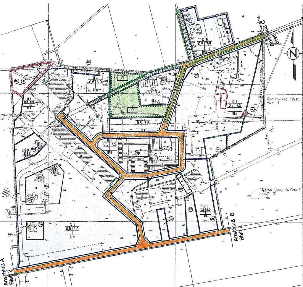
Luftbild Gewerbegebiet Baufeld IV Baufeld IV Bebauungsplan

Die Baugrundstücke befinden sich im „Industriegebiet Standort Flugplatz Lönnewitz“ im Süden des Landes Brandenburg. Baurecht besteht auf Grundlage eines rechtskräftigen Bebauungsplanes. Es steht derzeit lediglich noch ein Baufeld in Größe von ca. 1,8 ha zur Verfügung. Das Industrie- und Gewerbegebiet ist in den beiden Gemeinden Falkenberg (Elster) und Mühlberg (Elbe) belegen. In unmittelbarer Nachbarschaft befindet sich der Sonderlandeplatz Lönnewitz.

unmittelbar an der Bundestraße B 183 gelegen, die Autobahn A 13 in ca. 50 km Entfernung, Elbhafen in Mühlberg, Sonderlandeplatz angrenzend

Die Errichtung von Photovoltaikfreiflächenanlagen ist nicht genehmigungsfähig.

Wichtige Hinweise:
Der Verkäufer erwartet die Abgabe von Kaufpreisangeboten.
Interessenten werden gebeten, ihre Angebote im verschlossenen Umschlag mit dem Vermerk „Erwerbsantrag Gewerbegebiet Flugplatz Falkenberg-Lönnewitz“ einzureichen bei:

Brandenburgische Boden Gesellschaft für Grundstücksverwaltung und -verwertung mbH,
Frau Angela Podwitz
Am Baruther Tor 12, Haus 134/1
15806 Zossen.

Der Erwerbsantrag ist dem aussagekräftigen in der Anlage beigefügten Exposé zu entnehmen.

Hinweis: Unsere Veröffentlichung zum beabsichtigten Verkauf des Grundstücks und die Entgegennahme der Kaufpreisangebote erfolgt freibleibend. Bei dem Angebotsverfahren der in diesem Exposé benannten Grundstücke handelt es sich um eine für das Land Brandenburg unverbindliche Aufforderung zur Abgabe von Angeboten zum Kauf, die nicht den Bestimmungen der UvGO/VOB oder einer anderen bindenden Vergabevorschrift unterliegt.

Die BBG führt in der Regel nach Abgabe der Kaufpreisangebote mit mehreren Interessenten parallel Kaufverhandlungen für dasselbe Grundstück. Durch die Aufnahme und Führung derartiger Verhandlungen verpflichtet sich der Verkäufer nicht zum Abschluss eines Kaufvertrages.

Das Land behält sich die Entscheidung darüber vor, ob und ggf. an wen, in welchem Umfang und zu welchen Bedingungen der Verkauf erfolgt. Alle mit dem Erwerb verbundenen Kosten trägt der Käufer.

Mit der Abgabe Ihres Erwerbsangebotes erteilen Sie der BBG die Zustimmung zur Einholung einer Bonitätsauskunft. Unsere vollständigen Datenschutzhinweise gemäß DSGVO finden Sie in dem beigefügten Dokument.

Documents
Adresse: Grassauer Straße
State/County:
PLZ: 04895
Land: Germany
Objekt ID: 23825
Immobiliengröße: 0 m2
Grundstücksgröße: 32.352 m2
Ziimmer insgesamt: 0
Schlafzimmer: 0
Badezimmer: 0
Dachboden
Gasheizung
Meerblick
Weinkeller
Basketballplatz
Fitnessbereich
Teich
offener Kamin
Seeblick
Pool
Hinterhof
Vorgarten
umzäunter Garten
Berieselungsanlage
Waschmaschine und Trockner
Terrasse
Balkon
Wäscherei
Concierge
Pförtner
Privatbereich
Lagerfläche
Erholungsbereich
Dachterrasse
vollerschlossen
unerschlossen
Fernblick
teilerschlossen